Northcote Warehouse
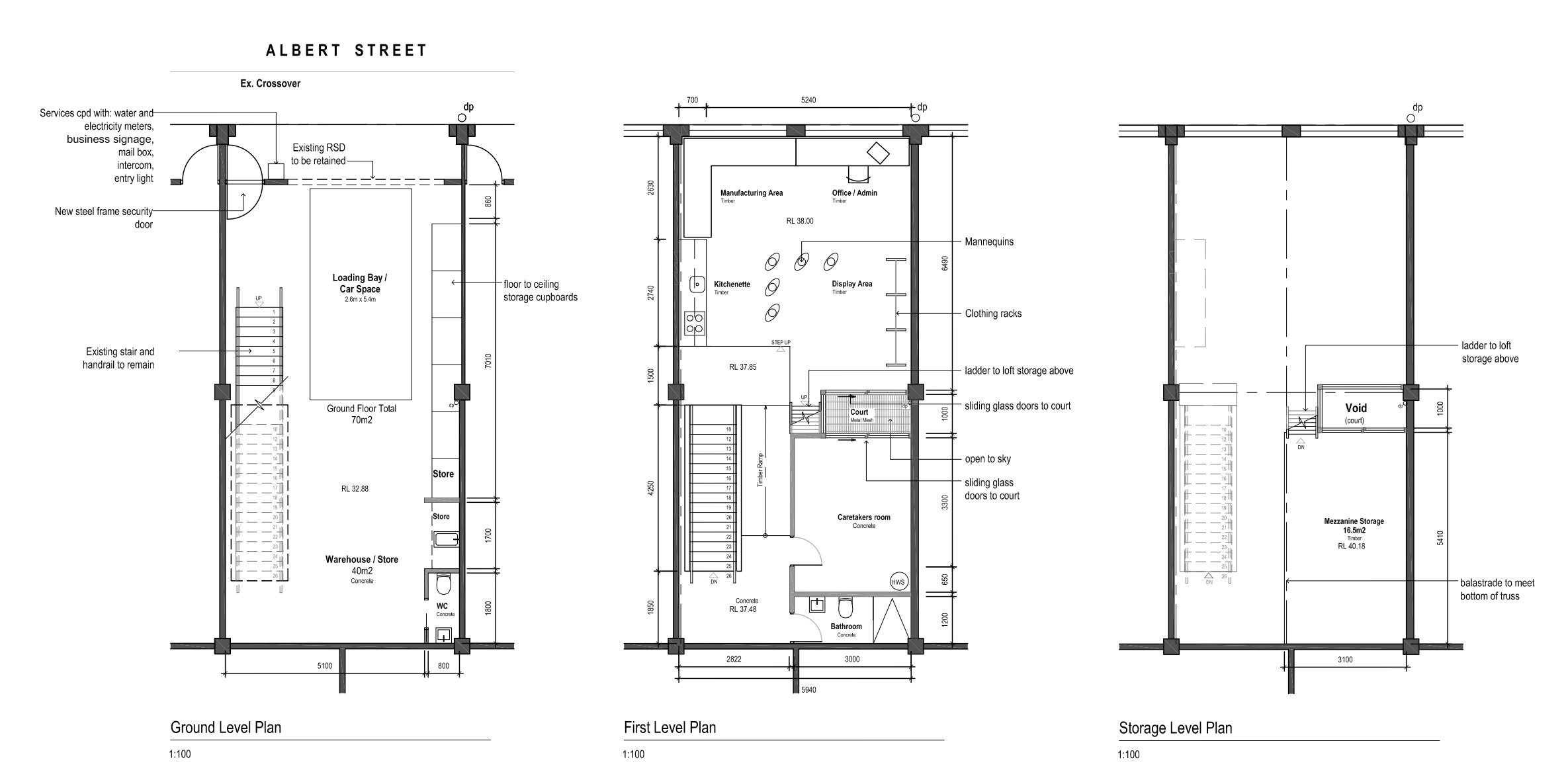
This two-storey warehouse on Albert Street in Northcote had been sitting as an empty shell. Our clients came to us wanting two things in the same building: building: a working florists warehouse on the ground floor and a home above it. The brief was direct and full of personality; reclaimed dark floorboards, a big communal kitchen table, an old-fashioned cooker, a cosy mezzanine for the living area, and an industrial feel without being sterile.
The existing structure gave us the bones. Ground floor became the florist studio, with a loading bay, floor-to-ceiling storage, and the original roller door retained at the front. Upstairs we carved out the residence, adding a mezzanine level to fit the living area within the volume of the first floor without losing the sense of height.
A light-well cut into the centre of the upper floor draws natural light down into the mezzanine and the bathroom below, and gives the sitting room a moment of visual relief from the surrounding walls. The stair doubles as a bookshelf, a detail that came directly from the brief and ended up defining the character of the space.
The result is a building that works hard on both levels, literally. A business runs out of the ground floor every day. Someone lives above it. Almost 20 years later, both are still going.
- Year
- 2008
- Use
- Florist studio & residence
- Photography
- Lauren Bamford
- Team
- Emilio Fuscaldo










